Office: ONYX CREATIVE

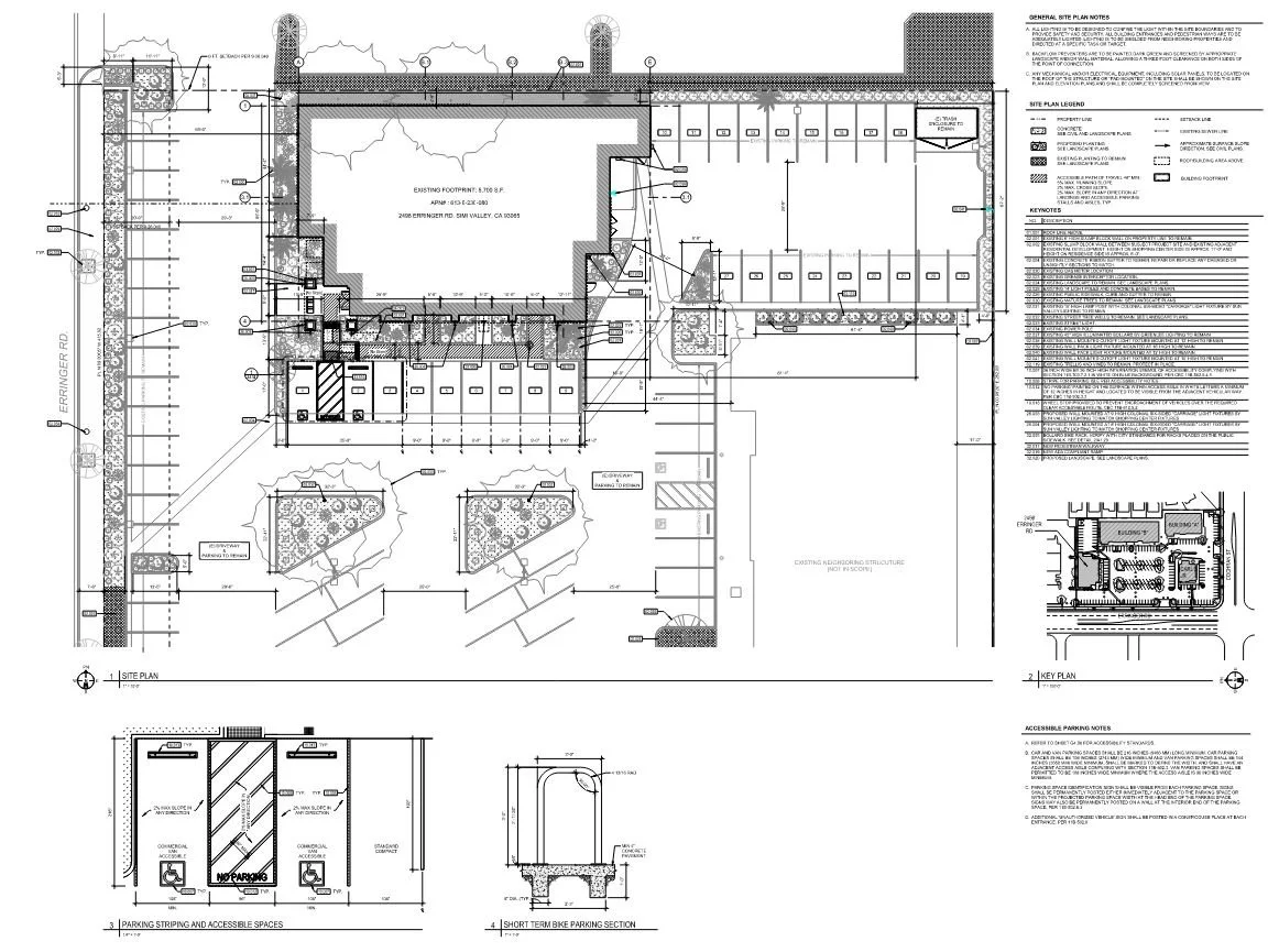
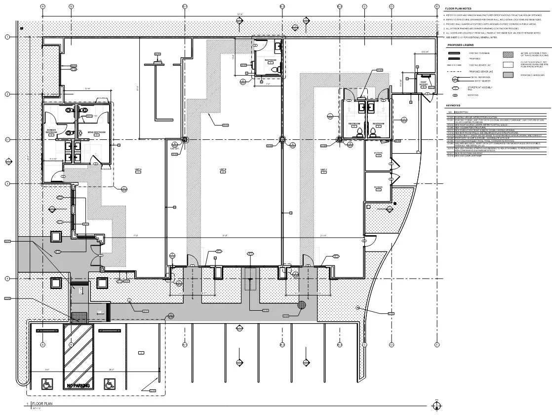
Project: THE PLAZA AT ERRINGER & COCHRAN

Location: Simi Valley, CA 

Role: Project Manager / Architect

Description: Interior and exterior remodel of an existing 5,700 sf retail building. The scope included subdividing one space into three different tenant spaces. Providing new entrances and restrooms, as well as site improvements.

Phases: SD, DD, CD

Year: 2025