Office: ONYX CREATIVE

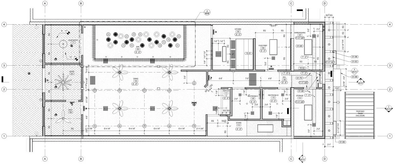
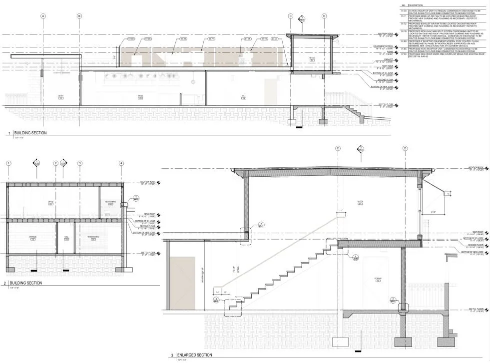
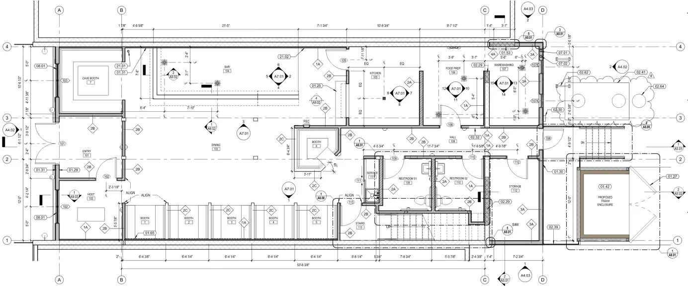
Project: HOUSE OF BAMBOO

Location: Camarillo, CA 

Role: Project Manager / Architect 

Description: Interior and exterior alteration of an existing single story tenant space for a 2,487 sf tiki themed restaurant. This includes a 567 sf two story addition in the rear of the building.

Phases: SD, DD, CD

Year Completed: 2026