Office: ONYX CREATIVE

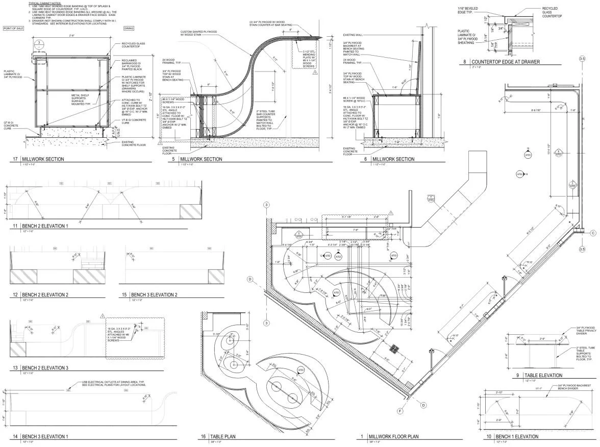
Project: LUKE’S DELI

Location: Ventura, CA 

Role: Project Manager / Architect 

Description: Interior tenant improvement for a 1,557 sf restaurant in an existing mercantile space. Concept renderings of furniture design and layout.

Phases: SD, DD, CD

Year Completed: 2026